Powerpoint
3.600$
per Month
Apartment
Square (ft)
3
Bedrooms
2
Bathrooms
1800
Square (ft)
2022
Year Built
2
Garage
Description
een mooie foto collage
Amenities
Outdoor Features
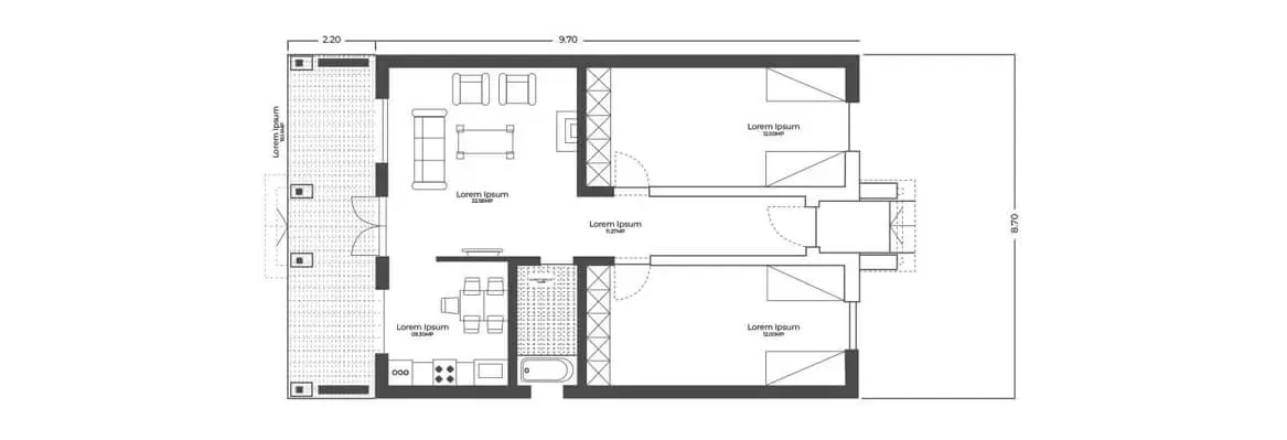
Floor Plan

What's Nearby?
School:
1.2km
Hospital, medical:
1.5km
University:
3km
Metro station:
0.1km
Grocery center:
0.5km
Gym, wellness:
0.8km
Market:
1.7km
River:
0.2km
Similar Properties
Clear Filters



